Maison à vendre 5 chambres à Grevenmacher

  • Type : Maison
  • Chambres : 5
  • Surface habitable : +/-192,00 m2
  • Superficie terrain : +/- 5,01 Ares
  • Prix de vente : 790 000 €
  • Honoraires d'agence :
  • Honoraires inclus : oui
  • Année de construction : 2017
  • Disponibilité : à convenir
  • Type de mandat : Exclusif
Contact
Classe énergétique :
économe
B
énergivore
Classe d'isolation thermique : B

Description

Dans le village et la Commune de Biwer, à proximité immédiate de Grevenmacher, NEWHOUSE vous propose ce nouveau projet de 4 maisons unifamiliales en classe énergétique AB et avec des jardins orientés sud/sud-ouest.

Situation
La commune de Biwer est idéalement placée à proximité de l’autoroute A1 et la nationale N1. L’accès à la Ville de Luxembourg est aisé par la route, le train (gare de Wecker ou de Roodt/Syre), et le bus. La commune dispose d’infrastructures scolaires et sportives ainsi que d’une piscine couverte. Plusieurs centres commerciaux se situent à proximité.

Description du projet :
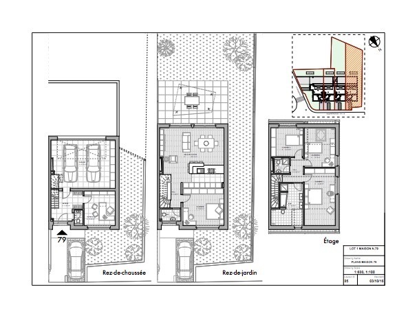
Cet ensemble moderne et de finition de qualité, comprend pour chaque maisons 4-5 chambres, 1 salle de bains, 1 salle de douche, 2 WC séparés, un grand open-space (cuisine ouverte, salon. salle à manger) en rez-de-jardin avec un accès à une belle terrasse arrière. Cette pièce peut encore être agrandie moyennant la réaffectation d’une des chambres.

Les maisons disposent chacune d’un garage pour 2 voitures à l’arrière et un d’emplacement externe à l’avant.

L’aménagement intérieur peut encore être modifié.

Les 4 lots individuels vous sont proposés avec contrat de construction en exclusivité avec notre partenaire EGLux, www.eglux.lu.

Le cahiers de charges ainsi que des renseignements additionnels sont disponibles auprès de NEWHOUSE Bureau Immobilier, 2 Rue de la Gare, L-6910 Roodt/Syre, contact@new-house.lu, Tel : 26787073.

Caractéristiques

Intérieur

Salon45.00 m2
Salle à mangeroui
Cuisine ouverteoui

Sanitaires

Salle de bain1
Salle de douche1
Toilettes séparées2

Extérieur

Terrain5.01 ares
Terrasseoui
Jardinoui

Voiture

Garages2
Place de parking1

Autres

Buanderieoui

Chauffage / climatisation

Pompe à chaleuroui

Contactez-nous

+352 26 78 76 53

Vous
 
Champs obligatoire
 

Localisation

Attention : Si l'adresse exacte n’est pas renseignée, le centre de la localité sera indiqué sur la carte.